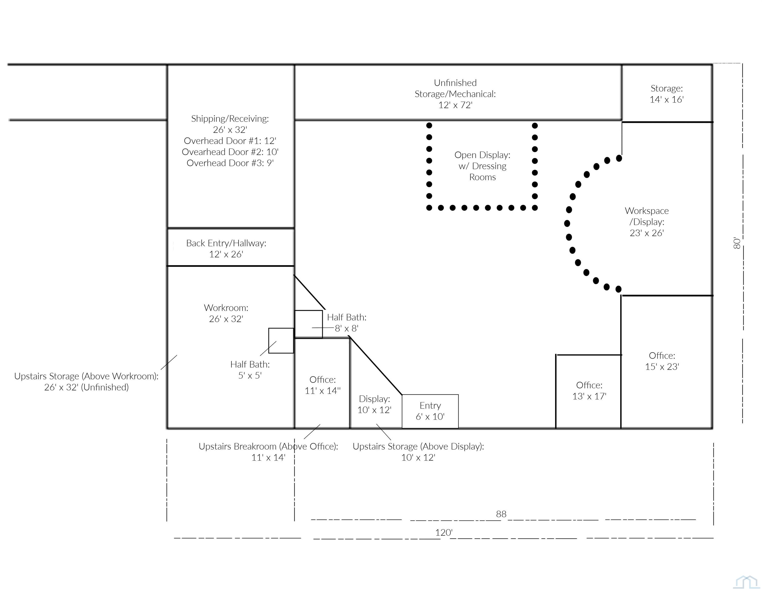
An exceptional opportunity to expand or relocate your business in one of Sioux Center’s most visible and active commercial corridors! This impressive steel-frame and metal-clad building, constructed in 1998, reflects premier construction standards and enduring quality craftsmanship. Offering over 11,000 square feet of well-designed office and retail space, the property delivers both functionality and adaptability for a wide range of professional, retail, or service-oriented uses. The interior features a large, open floor plan complemented by numerous private offices, allowing for efficient workflow, customization, and expansion. Three loading docks, generous warehouse and storage areas, and convenient on-site customer parking enhance the building’s operational efficiency. Positioned in a progressive and growing community, this location provides excellent exposure and accessibility for both clients and employees. The property has been consistently well-maintained and offers infrastructure designed to support long-term use. Multi-zoned heating and cooling systems promote energy efficiency and comfort throughout the building, while a central vacuum system adds to overall convenience. Office and restroom areas are in good condition and accessible to the public, supporting professional and customer-focused operations. A mezzanine level expands the usable space and includes additional storage, office space, and a break room, offering flexibility for management, administrative functions, or staff amenities. The building’s layout allows for seamless adaptation to a variety of business models. The exterior is in excellent condition, featuring properly graded grounds, lawn irrigation, and well-maintained landscaping that contributes to strong curb appeal. Located within an active commercial zone, the property benefits from high visibility, steady traffic, and a strong surrounding business presence!

Details

  • Year Built: 1998
  • Taxes: $13236
  • Tax Year: 2024
  • Lot Size: 36,155 sq. ft
  • MLS ID: 831638

Listing courtesy of Jennifer Jansen - Epic Realty Inc.

Share This Listing


Questions? Contact Us

Listing Notification

Let us know what you are interested in and we will notify you when a new property that matches your critera has been added to our listings.